Townhouse in Lund

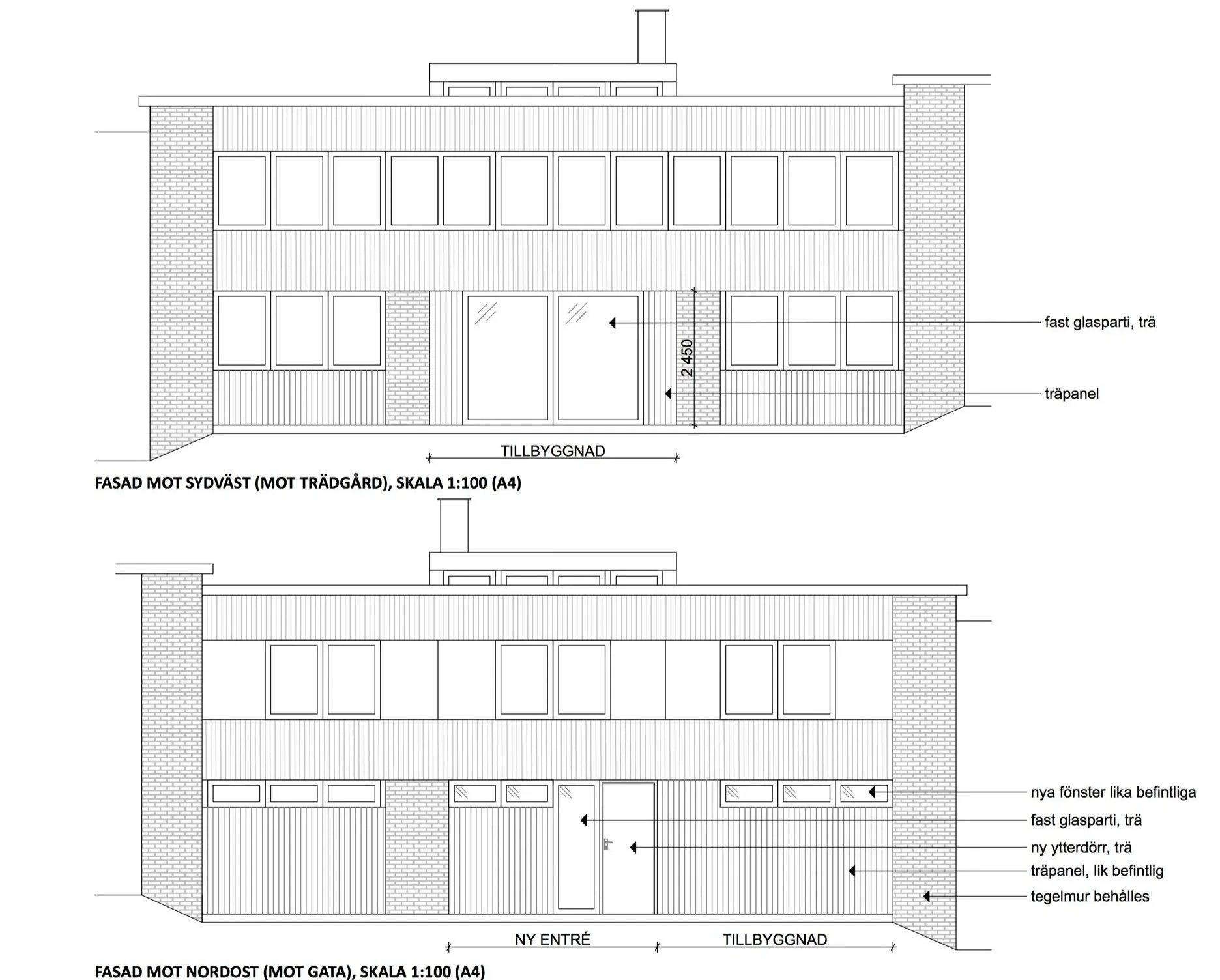
This project concerns the renovation and extension of a townhouse in Lund, originally designed around 1960 by Bernt Nyberg. The houses in this area are characteristic atrium houses—low, inward-facing dwellings organized around private courtyards. This typology creates a strong sense of privacy while establishing a close relationship between interior spaces and the outdoor environment. The architecture is defined by clear geometry, restrained materiality, and a rhythmic repetition of volumes.

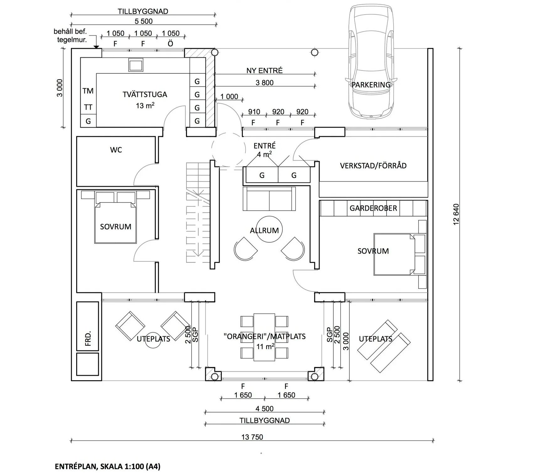
The aim of the project was to strengthen the connection between the house and its garden at ground level, while also creating a new entrance with improved storage. The intervention seeks to clarify movement through the home and enhance everyday functionality without compromising the original architectural intent.

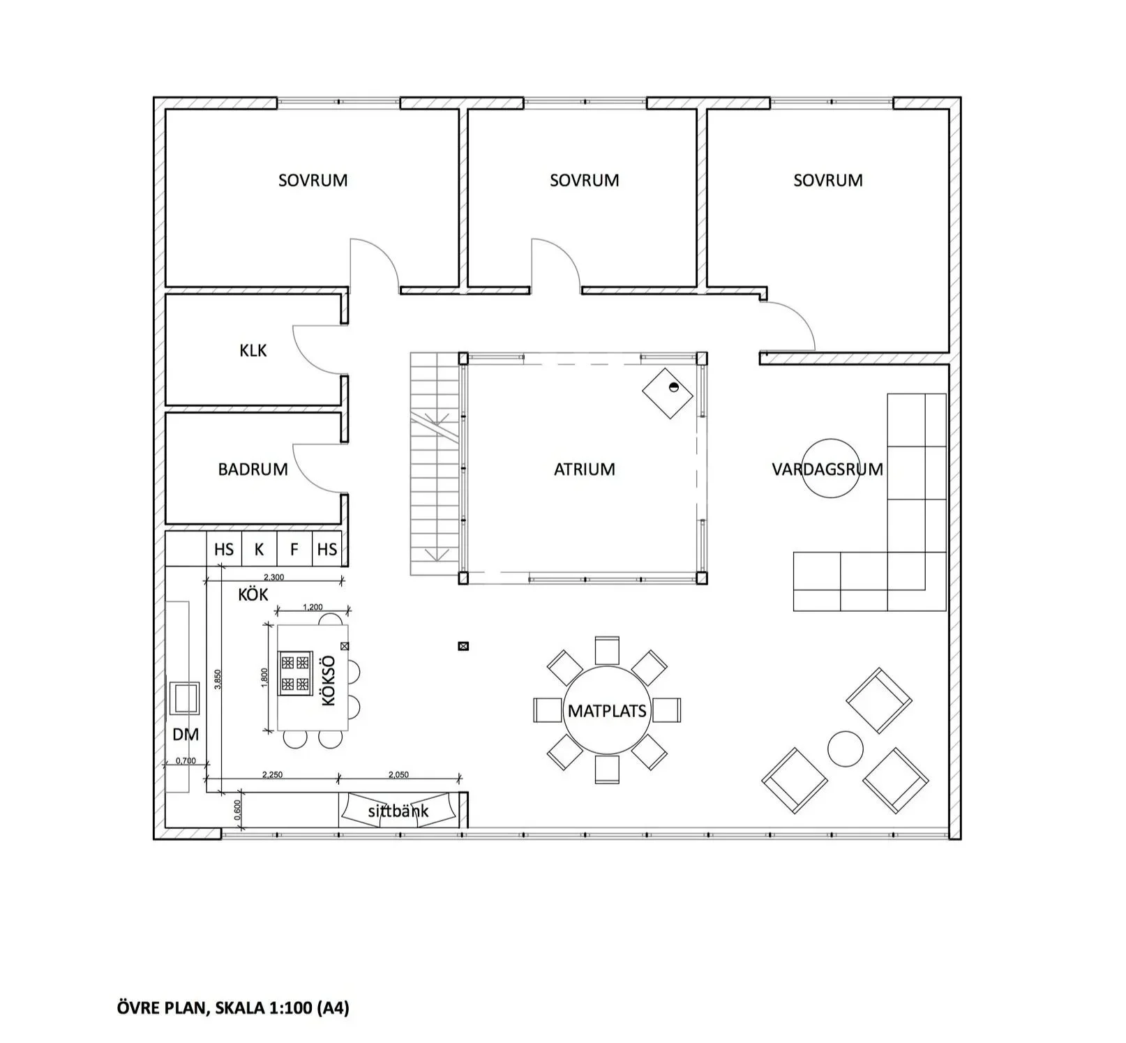
On the upper floor, the proposal introduces an expanded kitchen that opens up towards the dining area and living room, creating a more cohesive and social living space suited to contemporary family life.

A central ambition throughout the project has been to preserve the existing character of the house—its spatial logic, material palette, and architectural rhythm—while carefully adapting it to meet the needs of a modern family. The design is guided by a deep respect for the original architecture, balancing continuity and change to allow the house to evolve without losing its identity.

Next
Next

Private House Extension Danderyd